Fram 3

Fra er en framtidsrettet, moderne design uten omramminger rundt dører og vinduer. Som utgangspunkt er dører og vinduer uten sprosser, men tilpasses lokale reguleringsbestemmelser. Det er også takoverbygg ved terrassedør som gir en lun og god uteplass.

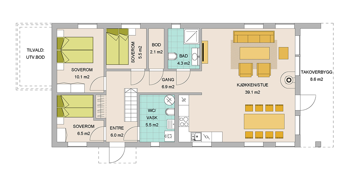
Planløsningen er praktisk med tre soverom, bad og separat WC i kombinasjon med vaskerom, samt innebod. Stue/kjøkken er romslig og med åpen gavl, noe som gir en fantastisk god romfølelse. Store vindusflater gir et lyst og trivelig innemiljø samtidig som du kan skue på utsikten. Hemsen gir modellen et ekstra areal som er praktisk når hele familien er samlet. Muligheter for å tilpasse en utebod på den ene gavlveggen.

Plantegninger