Horisont 3

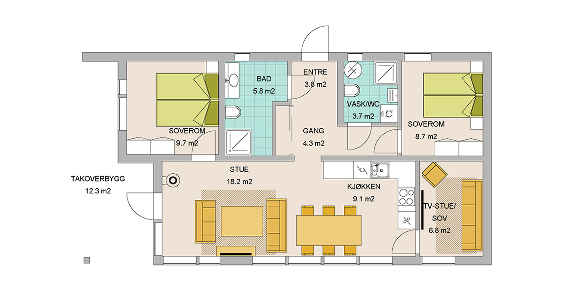
Stor og god entré med tilgang til et stort bad, eller som tar deg videre enten til soverom eller vaskerommet som har plass til en ekstra dusj og wc.  Fra stuen og kjøkkenet med mønt himling, kan du gå ut til en overbygget uteplass, og kjenne på de forskjellige årstider. Mønt himling gir en veldig god romfølelse grunnet stor takhøyde. Fra stuen/kjøkkenet får du også tilgang til soverom og til en ekstra TV-stue. Mulighet for utvendig bod på ene gavlen.

Plantegninger