Luftig 3

Kompakt sportshytte med overbygd terrassedel. Innholdsrik med to gode soverom, ett romslig bad, entre/gang med garderobemuligheter. Kjøkken/stue har åpen himling og gir en fantastisk romfølelse. Her får du 3 siktretninger siden det er store vinduer og som nesten går ned til gulvet. Egen utebod med inngang fra ute, samt overbygd inngangsparti.

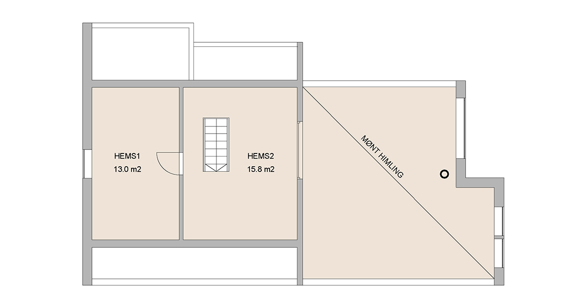
Hemsen er rett og slett stor og har et gulvareal på nesten 28m2 fordelt på to hemsrom.

En modell som lett tilpasses de fleste tomter grunnet form og fasong, samt at du har siktlinjer fra tre sider fra stue/kjøkken.

Denne hytta er utsilt på Norsk Hyttesenter på Hellerudsletta på Skjetten. Velkommen hit torsdag til lørdag for å se denne flotte hytta og få hyttefølelesen.

Plantegninger