TE 2

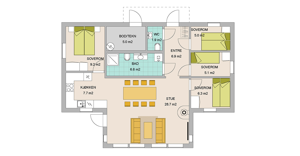
Denne modellen er tilpasset hele storfamilien og er svært innholdsrik med 4 soverom, bod, bad, separate WCrom og stor stue/kjøkken på overkant av 36m2. Stuen har åpen himling som gir en god romfølelse og vi har store vinduer slik at du kan nyte utsikten. I tillegg gir stua høy grad av lysinnslipp noe som skaper en lys og lun atmosfære.

Unikt å få så god og funksjonell planløsning når det totale bruksarealet er 87m2 og fotavtrykket er på snille 99m2.

Plantegninger